Donnerstag, 20. August 2020
Zuschlag für energetische Quartierslösung der Heinrich-Pesch-Siedlung geht an TWL
Bewerbungsverfahren lief seit 2019
Ludwigshafen. Seit Januar 2019 lief das Bewerbungsverfahren für die energetische Gestaltung der geplanten Heinrich-Pesch-Siedlung. Die Technischen Werke Ludwigshafen konnten sich mit dem Konzept einer nachhaltigen energetischen Quartierslösung durchsetzen. Am 2. Juni 2020 unterzeichneten die Projektverantwortlichen und TWL den Kooperationsvertrag.
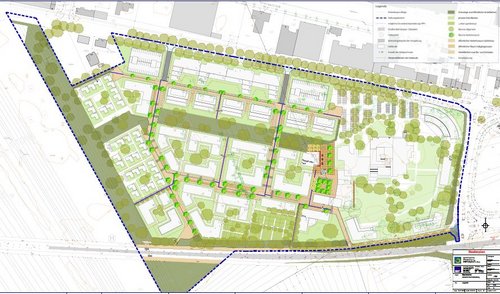
Die Heinrich-Pesch-Siedlung zwischen Ludwigshafen-West und Oggersheim soll im Wesentlichen Wohnraum für bis zu 1.500 Menschen und daneben auch Gewerbeflächen bieten. Eigentümer des rund zehn Hektar großen Areals sind das Heinrich Pesch Haus und die Katholische Gesamtkirchengemeinde Ludwigshafen. Sie werden das Bauprojekt realisieren. Entstehen wird ein neues urbanes Gebiet, in dem Arbeiten, Wohnen, Bildung und Soziales miteinander verzahnt werden. Zentrales Konzept ist eine soziale Durchmischung, in der neue Wohnformen und Nachbarschaften entwickelt werden.
Beitrag zu einer gerechten und solidarischen Gesellschaft
„In einer Zeit der Unübersichtlichkeit brauchen Menschen mehr denn je Nachbarschaften, in denen die Vielfalt der Gesellschaft sich als Reichtum zeigen und begegnen kann. Wir wollen einen Raum eröffnen, in dem Menschen sich begegnen können, einen Raum, den sie selbst mitgestalten können im Sinne eines humanen und im Blick auf die Umwelt nachhaltigen Miteinanders“, sagt der Direktor des Heinrich Pesch Hauses, Pater Tobias Zimmermann SJ. Für Ulrike Gentner, stellvertretende Direktorin des Heinrich Pesch Hauses und Direktorin Bildung, sind sowohl der Rückzug in die eigenen vier Wände als auch das Gemeinschaftserleben in einem Quartier wichtig. Unerlässlich sei die Vernetzung mit dem städtischen Leben im Umfeld. „Die spürbare Zugehörigkeit zum eigenen Quartier und die Verortung im urbanen Leben der Stadt – beides wird durch die Heinrich-Pesch-Siedlung ermöglicht und gefördert. Damit leistet sie einen Beitrag zu einer gerechten und solidarischen Gesellschaft“, sagt Ulrike Gentner.
Nachhaltiges Energiekonzept für Siedlung
Dieses innovative Wohnkonzept soll von einem ökologisch hochwertigen, nachhaltigen Energiekonzept begleitet werden. „Das Energiekonzept soll, wie die Siedlung selbst, zu wirtschaftlich vertretbaren Kosten realisierbar sein“, betonen die Projektmanager Ernst Merkel und Dr. Michael Böhmer. Die Projektmanager entwickelten dazu einen Anforderungskatalog an die Bewerber für die energetische Gestaltung der neuen Siedlung. Dabei unterstützte sie Olaf Hildebrandt vom Tübinger Fachbüro für Planung und Entwicklung ebök. Wichtige Punkte waren Photovoltaik, Elektromobilität und ein Glasfasernetz in der Siedlung. „Auch das Mieterstrommodell war eine der Vorgaben an die Bewerber“, erläutert Dr. Michael Böhmer.
Daher gehörten zu den Anforderungen im Bewerbungsverfahren nicht nur eine wirtschaftlich und technisch vorbildliche Integration von erneuerbaren Energien, die für Strom und Wärme vorzugsweise aus lokalen Energiequellen kommen sollen, sondern auch eine möglichst hohe Nutzung von eigenerzeugtem Strom. „Wir möchten in der Siedlung so wenig CO2-Emissionen wie möglich. Teil des Konzepts sollen auch Ladestationen für Elektromobilität sein“, sagt Ernst Merkel. Am Ende sei TWL der beste Anbieter gewesen.
Quartierslösung von TWL
TWL überzeugte mit einer nachhaltigen energetischen Quartierslösung. „Früher hat man beim Stichwort „Energiewende“ in der Gebäudeplanung vor allem über Maßnahmen an der Gebäudehülle, wie beispielsweise Wärmedämmung, nachgedacht,“ so Thomas Mösl, Technischer Vorstand von TWL, „dann rückte die Eigenenergieerzeugung ins Blickfeld, z. B. durch Solaranlagen. Für die Gestaltung der Zukunft der Energieversorgung und damit für das Gelingen der Energiewende müssen wir einen Schritt weiterdenken.“
Quartierslösungen denken einen solchen Schritt weiter. Sie vernetzen Energieversorgung und Eigenenergieerzeugung mit den energetischen Anforderungen der Bewohner, der im gesamten Quartier benötigten Infrastruktur und Mobilitätskonzepten wie der Elektromobilität.
„Wir sind stolz darauf, dass wir den Zuschlag für dieses Projekt erhalten haben“, erklärt Dieter Feid, Kaufmännischer Vorstand von TWL. „TWL ist heute ein moderner, breit aufgestellter Energiedienstleister. Wir können ein solches Konzept aus einer Hand liefern. Da wir über unsere Tochtergesellschaften auch Leistungen wie Kommunikationsanlagen und Glasfasernetz bieten, sind wir in der Lage interessante Zusatzlösungen zu realisieren.“
Hohe Versorgungssicherheit – Redundanz und 24/7 Entstördienst
Die Heinrich-Pesch-Siedlung wird so in die bestehenden Ludwigshafener Strom-, Fernwärme- und Trinkwassernetze integriert, dass durch redundante Strukturen und flexible Umschaltmöglichkeiten eine hohe Versorgungssicherheit entsteht. Sämtliche Netze, Erzeugungsanlagen und Energiedienstleistungen werden in das 24/7 Störungsmanagement von TWL eingebunden. Die hochmoderne TWL-Querverbundleitwarte, die rund 150 von TWL betriebene Strom- und Wärmeerzeugungsanlagen sowie alle Netze der Energie- und Wasserversorgung in Ludwigshafen überwacht, wird so auch Betreibern und Mietern der Siedlung als zentrale Anlaufstelle für jede Störung rund um die Uhr zur Verfügung stehen.
Hohe Autarkie - Photovoltaik, Brennstoffzelle, Wasserstoffspeicher
Auf den Gebäuden werden Photovoltaikanlagen installiert, deren Vermarktung und Management bei TWL liegen. Der so erzeugte Strom kann von den Bewohnern durch ein Mieterstrommodell genutzt werden. Gleichzeitig werden mit dem auf den Gebäuden erzeugten Strom Anlagen zur Kälteerzeugung betrieben.
Das Leuchtturmprojekt für die Nutzung eigenerzeugten Stroms ist die Versorgung des geplanten Begegnungshauses mit innovativer Wasserstoff-Technologie. Das Projekt umfasst die Komponenten Photovoltaik-Zellen, Brennstoffzelle, Batterie, Elektrolyseur und Wasserstoffspeicher. Der ökologische Solarstrom wird während der Sommermonate kurzfristig in einer Batterie gespeichert, überschüssiger Strom wird per Elektrolyse in speicherbaren Wasserstoff umgewandelt. Durch die Batterie und die Brennstoffzelle wird somit der Strombedarf in den Dunkelzeiten abgedeckt. Während des Winters wird der Wasserstoff in der Brennstoffzelle zur Verstromung eingesetzt.
Moderne Mobilität – Ladeinfrastruktur und intelligente Straßenbeleuchtung
Damit nicht genug: In zwei Parkhäusern und in den Tiefgaragen wird eine moderne Ladeinfrastruktur für Elektroautos aufgebaut, die über ein intelligentes Lastmanagement und ein intelligentes Abrechnungssystem verfügt. Das gesamte Quartier erhält zudem eine intelligente Straßenbeleuchtung, alle Leuchten werden mit modernster LED-Technik ausgestattet, die die Straßen und Wege bedarfsorientiert ausleuchten. Die Betriebsführung, Wartung und Entstörung der Straßenleuchten übernimmt TWL. Durch das Stromkonzept wird ein hoher Anteil an eigenerzeugtem und selbst genutztem Strom aus erneuerbaren Energien in der Siedlung sichergestellt.
Saubere Wärme - Niedertemperaturnahwärmenetz
Auch bei der Wärmeversorgung wird konsequent auf CO2-arme Technologie gesetzt. Die Heinrich-Pesch-Siedlung wird dafür in das bestehende Ludwigshafener CO2-arme, umweltfreundliche Fernwärmenetz integriert. Die Wärmeversorgung erfolgt durch ein Niedertemperaturnahwärmenetz, das durch den Rücklauf der TWL-Fernwärme gespeist wird. Es entsteht eine schornsteinfreie Lösung mit einem Primärenergiefaktor von Null für die Versorgung der Gebäude, die komplett auf Verbrennung innerhalb der Siedlung verzichtet und daher keine CO2-, NOx- und Feinstaubemissionen freisetzt. Gleichzeitig handelt es sich um eine störungs- und wartungsarme sowie geräuschlose Technik.
Modern Wohnen und Arbeiten - Glasfaser und High-Speed-Internet
Zusätzlich wird die Heinrich-Pesch-Siedlung über Tochtergesellschaften von TWL mit einem Glasfasernetz versorgt, das High-Speed-Internet mit sehr hohen Übertragungsraten und zudem das innovative Energieversorgungskonzept in Echtzeitsteuerung ermöglicht.
Über das HPH
Das Heinrich Pesch Haus – Katholische Akademie Rhein-Neckar (HPH) ist eine Bildungseinrichtung und ein Begegnungsforum für gesellschaftliche Gestalter und Menschen jeden Alters. Die Bildungsbereiche bieten Seminare und Workshops, Vortrags- und Diskussionsabende, Beratungs- und Freizeitangebote für Familien, Fachsymposien und Weiterbildungsmaßnahmen an, die einen Beitrag zu sozialen, ethischen und theologischen Fragestellungen leisten. Träger des HPH ist ein gemeinnütziger Verein, dem die Diözese Speyer, der Jesuitenorden und die katholischen Gesamtkirchengemeinden Ludwigshafen und Mannheim angehören.
Über TWL
TWL, entstanden aus den Stadtwerken Ludwigshafen, beschäftigt 671 Mitarbeiter (Stand: 31.12.2019) und erwirtschaftete im Jahr 2019 einen Umsatz von 503,8 Millionen Euro. Das in der Region verwurzelte kommunale Versorgungsunternehmen beliefert seit über 100 Jahren die Stadt Ludwigshafen mit Strom, Gas, Wasser und Fernwärme. Alleinaktionärin von TWL ist die Stadt Ludwigshafen, Aufsichtsratsvorsitzende ist Oberbürgermeisterin Jutta Steinruck. Mehr Informationen gibt es unter www.twl.de.
Text/Plan: HPH
