Dienstag, 06. Oktober 2020
„Eine große Vision kann jetzt in die Umsetzung gehen!“
Ludwigshafener Stadtrat gibt grünes Licht für den Bau der Heinrich-Pesch-Siedlung
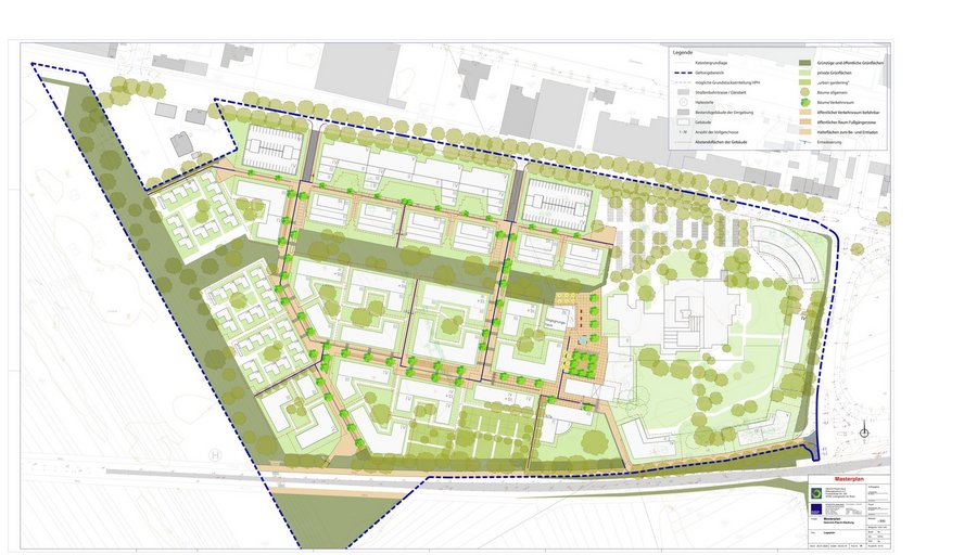
Ludwigshafen. Am Montag, 5. Oktober, hat der Ludwigshafener Stadtrat dem Bau der Heinrich-Pesch-Siedlung zugestimmt. Vor drei Jahren begannen die ersten Planungen, jetzt kann das Projekt umgesetzt werden. Erste Erschließungsarbeiten auf dem Gelände westlich des Heinrich Pesch Hauses (HPH) sollen noch in diesem Jahr beginnen. Als erstes Gebäude ist eine Kita geplant.
In der Stadtratssitzung am Montag, 5. Oktober, stimmten die Stadträte aller Fraktionen einstimmig für den Bau der Heinrich Pesch Siedlung. Diese soll westlich des HPH entstehen und mit 550 Wohnungen Platz für bis zu 1.500 Menschen bieten. „Ich bin dankbar, dass wir mit diesem deutlichen Rückenwind durch den Stadtrat nun beginnen können, nach den Jahren der Planung und Vorbereitung, unsere Überlegungen zu nachhaltigen, sozialen und ökologischen Konzepten des Zusammenlebens für die Stadt Ludwigshafen in die Tat umzusetzen“, sagte der Direktor des Heinrich Pesch Hauses, Pater Tobias Zimmermann SJ.
Sein herzlicher Dank galt dem Team, das dieses Projekt den langen Weg von den Idealen und den daraus resultierenden ehrgeizigen Zielen zu konkreten, umsetzbaren und konsensfähigen Konzepten unermüdlich und kompetent vorangetrieben habe. „ Ich möchte an dieser Stelle besonders Dr. Michael Böhmer und seinem Team sowie Ernst Merkel danken. Ohne ihre Expertise und ihr Engagement wäre es nicht möglich gewesen, das Projekt bis hierher, noch dazu in so kurzer Zeit, zu entwickeln. Ich danke aufrichtig Ulrike Gentner, Dekan Alban Meißner und Pater Johann Spermann, die mit den genannten Mitstreitern das Projekt vor drei Jahren aus der Taufe gehoben haben. Ich danke der Gesamtkirchengemeinde für das Vertrauen, mit uns dieses Projekt anzugehen, sowie der Provinz der Jesuiten und dem Bistum Speyer für Ihren politischen Rückhalt, ohne den ein Projekt dieser Größenordnung niemals möglich gewesen wäre“, sagte Zimmermann.
Breite Unterstützung für die Siedlung
In seinen Dank bezog er auch die Stadt Ludwigshafen, ihre politische Spitze, die politischen Parteien und vor allem auch die Verwaltung mit ein, die das Projekt von Anfang an wohlwollend und konstruktiv begleitet haben. „Dies ist ein großer Schritt auf einem noch langen und aufregend kreativen Weg, für die Stadt Ludwigshafen und darüber hinaus neu aus zu buchstabieren, was Zusammenleben in einer von Vielfalt geprägten Gesellschaft lebenswert macht, wie Nachbarschaften gelingen können, die diese soziale Vielfalt nicht negieren, sondern als Ressource für menschlich gelingendes Leben betrachten. Und wie dieses Zusammenleben gelingen kann, so dass die Ressourcen der Natur möglichst geschont werden“, erläuterte der Direktor des HPH. Die Projektträger sehen dies als einen notwendigen Lösungsbeitrag der Kirche in Politikfeldern, in denen die Gesellschaft um tragfähige Zukunftskonzepte ringt. „Und wir bitten Sie, die Stadtgesellschaft, auch in Zukunft, dieses Projekt wohlwollend, konstruktiv-kritisch und unterstützend weiter zu begleiten, wie in den vergangenen Jahren“, sagte Tobias Zimmermann.
Verbindung von Sozialem, Ökologie und Ökonomie
„Es geht um wirkliche Nachhaltigkeit“, hob Pater Johann Spermann SJ hervor. Der ehemalige Direktor des HPH und Initiator der Heinrich-Pesch-Siedlung ist überzeugt, dass fehlende Wohnungen für Menschen mit wenig Geld und große Familien eine der größten Nöte unserer Zeit sind. „Uns ist es sehr wichtig, mit der Siedlung dazu einen Beitrag zu leisten. Wir wollen in die Debatte eintreten, wie man Soziales, Ökologie und Ökonomie miteinander verbinden kann“, erläuterte Spermann.
Drei Jahre sind von den ersten Ideen bis zur Rechtskraft des Bebauungsplans vergangen. „Es ist ein unglaublicher Meilenstein, dass wir jetzt Baurecht erhalten. Eine große Vision für einen Lebensraum, in dem sich Individualität und Gemeinschaft, Vielfalt und Teilhabe verbinden - interkulturell, intergenerationell und inklusiv - kann jetzt in die Umsetzung gehen“, freute sich die stellvertretende Direktor des HPH, Ulrike Gentner.
Siedlung ist Leuchtturmprojekt
Für die Projektmanager Ernst Merkel und Dr. Michael Böhmer ist die Siedlung ein „Leuchtturmprojekt“. Dazu trägt nicht nur die Mischung aus Miet- und Eigentumswohnungen für alle gesellschaftlichen Schichten und Generationen bei, sondern auch das soziale Konzept. Ein Begegnungshaus, ein Tante-Emma-Laden und ein Café, die sich um einen zentralen Platz gruppieren, sollen das Miteinander der Bewohner*innen fördern. Concierge und Quartiersmanager werden Ansprechpartner für die Bewohner in der verkehrsberuhigten Siedlung sein. Als erstes Gebäude soll eine Kindertagesstätte erbaut werden.
Fertigstellung 2026
Der Baubeginn für die ersten rund 120 Wohnungen im ersten Bauabschnitt ist für das dritte Quartal 2021 vorgesehen. Alle ein bis anderthalb Jahre soll dann der nächste Bauabschnitt in Angriff genommen werden. „2026 könnte, wenn alles gut läuft, die Siedlung fertig sein“, sagt Ernst Merkel.
Text/Foto: HPH
