"Sucht neue Worte, das Wort zu verkünden"
Von Gott reden in säkularer Zeit weiterlesen
Stabwechsel im Bischofshaus
Auf Elisa Ahrens folgt Dr. Thomas Stubenrauch als persönlicher Referent des Bischofs weiterlesen
Neuer Domvikar und Kaplan der Pfarrei Pax Christi Speyer
Maximilian Brandt ist von Rom aus dem Ruf nach Speyer gefolgt weiterlesen
Gründung eines Betroffenenbeirats geplant
Ziel: Kritische Begleitung der Aufarbeitung und Hinweise für Prävention – Finanzierung der Anerkennungsleistungen für Betroffene aus dem Bischöflichen Stuhl weiterlesen
Rosenkranzfest in Maria Rosenberg
Waldfischbach-Burgalben. Der Wallfahrtsort Maria Rosenberg beschließt am kommenden Sonntag, dem 11. Oktober 2020, das Betjörg-Jubiläumsjahr. Um 10 Uhr findet in der Wallfahrtskirche eine Eucharistiefeier mit Pater... weiterlesen
ÖPNV – Wie funktioniert das?
Workshop in der Reihe Frauen und Kommunalpolitik am 28. Oktober weiterlesen
Informationen für Eltern und ErzieherInnen
St. Martin feiern im Jahr 2020 Informationen zur Feier des St. Martinsfestes in Kindertagesstätten Vorschläge und Materialien zur Feier des St. Martinsfestes Aufnahme des Regelbetriebs zum 01.08.2020 Mit dem 1.... weiterlesen
„Im Angesicht der Ewigkeit“
Vortragsreihe des HPH rund um Sterben, Tod und Trauer wird fortgesetzt weiterlesen
Vorfahrt für den Nikolaus – fairändere die Welt!
Aktion des BDKJ Speyer geht in die zwölfte Runde weiterlesen
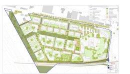
„Eine große Vision kann jetzt in die Umsetzung gehen!“
Ludwigshafener Stadtrat gibt grünes Licht für den Bau der Heinrich-Pesch-Siedlung weiterlesen









